Journal Officiel Algérien | SGG Algérie Consultez et recherchez facilement et rapidement les lois et décrets dans le Journal Officiel Algérien.
Numéro 11 SGG Algérie

Augmentation des pensions des Moudjahidines, nouvelles réglementations sur les armes et ajustements des prix du café

1. Décrets

Modifications législatives clés incluant les pensions des anciens combattants et l'organisation des universités.

- Décret exécutif n° 25-80 modifiant le décret exécutif n° 08-155 portant revalorisation du montant des pensions des moudjahidines et des ayants droit de chouhada et de moudjahidines, des victimes civiles et des victimes d'engins explosifs ainsi que leurs ayants droit. - Décret exécutif n° 03-279 fixant les missions et les règles particulières d'organisation et de fonctionnement de l'université (Rectificatif).

2. Décisions Individuelles

Nominations et fins de fonctions de hauts responsables.

- Décret présidentiel portant nomination d'un chargé de mission à la Présidence de la République. - Décrets exécutifs mettant fin aux fonctions de secrétaires généraux auprès de chefs de daïra dans certaines wilayas. - Décret exécutif mettant fin aux fonctions de la chef de cabinet de l'ex-ministre de l'industrie et de la production pharmaceutique. - Décret exécutif mettant fin aux fonctions de la directrice de la santé et de la population de la wilaya de Aïn Defla. - Décret exécutif portant nomination de la directrice des finances et des moyens au ministère de la santé.

3. Cour Constitutionnelle

Mise à jour parlementaire : remplacement d'un député à l'Assemblée Populaire Nationale.

- Décision n° 01/D.CC/25 relative à la déclaration de la vacance de siège et au remplacement d'un député à l'Assemblée Populaire Nationale.

4. Ministère de la Défense Nationale

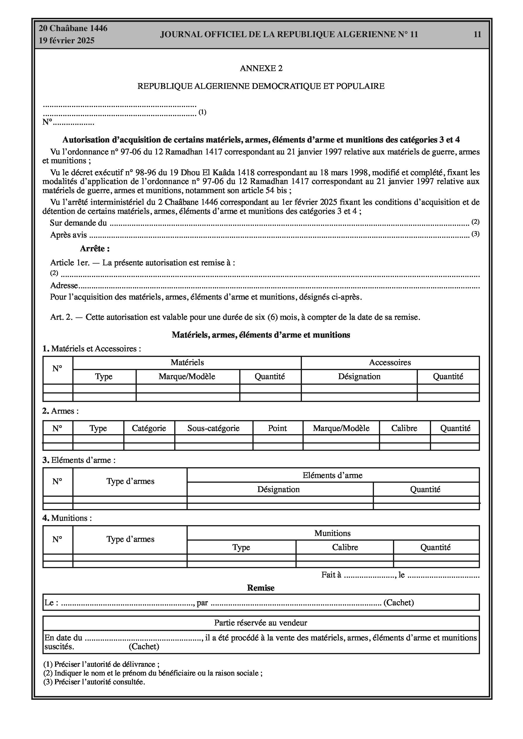
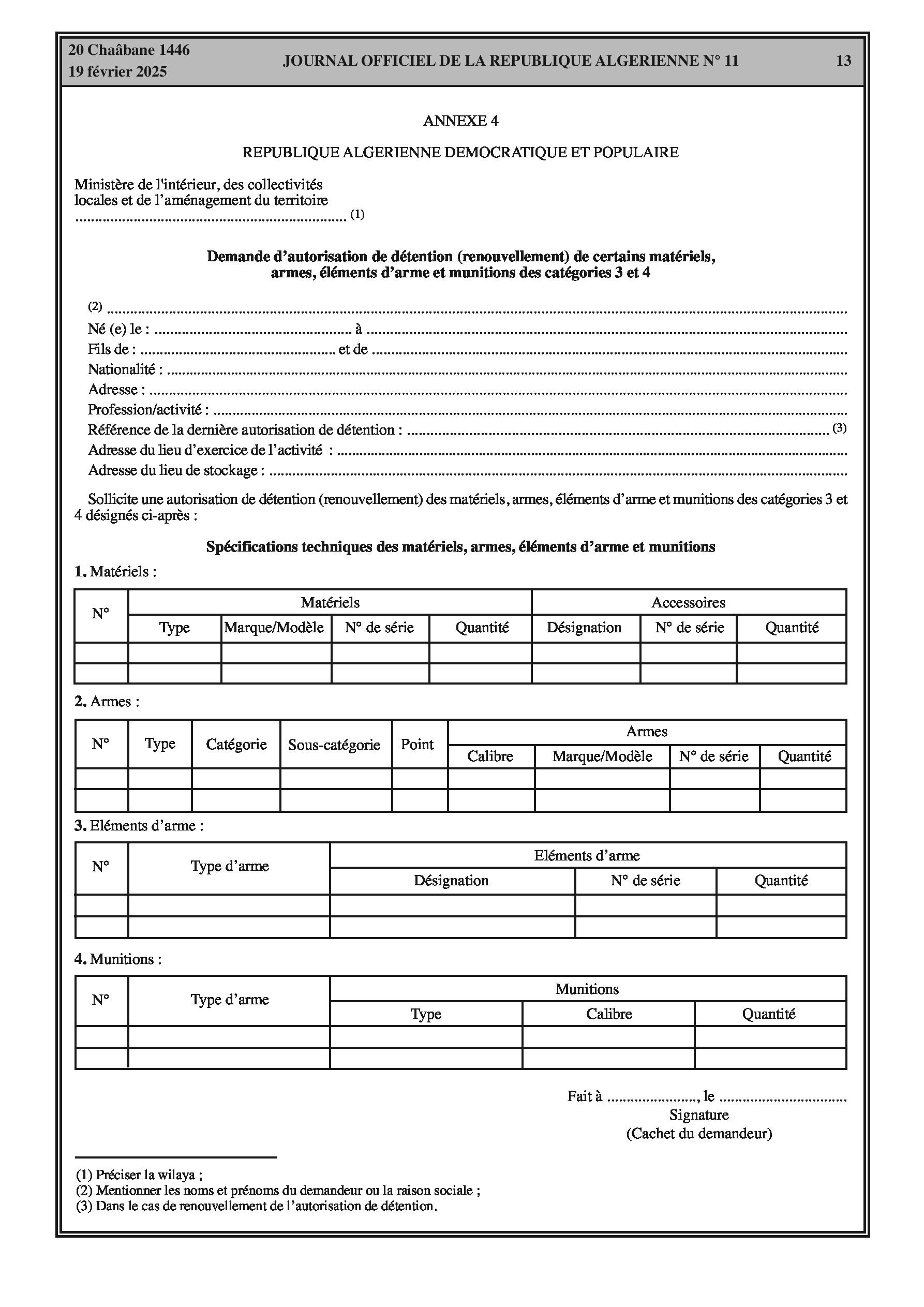
Nouvelles réglementations pour l'acquisition et la détention d'armes des catégories 3 et 4.

- Arrêté interministériel fixant les conditions d'acquisition et de détention de certains matériels, armes, éléments d'arme et munitions des catégories 3 et 4.

5. Ministère des Finances

Agréments pour des sociétés de courtage d'assurance, un courtier d'assurance et nominations au conseil de la comptabilité.

- Arrêtés portant agrément de sociétés de courtage d'assurance (EURL « EXPERT ASSURANCES », EURL « LEUROPEO AFRICAINE DE COURTAGE D'ASSURANCE », SARL « INSURANCE BROKRAGE AND SERVICES »). - Arrêté portant agrément d'un courtier d'assurance. - Arrêté portant nomination des membres du conseil national de la comptabilité.

6. Ministère de la Formation et de l'Enseignement Professionnels

Placement en activité de personnel technique du secteur de l'habitat vers la formation professionnelle.

- Arrêté interministériel portant placement en position d'activité, auprès du ministère de la formation et de l'enseignement professionnels et des services extérieurs en relevant, de certains corps techniques spécifiques relevant de l'administration chargée de l'habitat et de l'urbanisme.

7. Ministère de la Culture et des Arts

Institutionnalisation du festival international du film Imedghassen à Batna.

- Arrêté portant institutionnalisation du festival culturel international « cinéma Imedghassen ».

8. Ministère de la Poste et des Télécommunications

Modifications des conseils d'administration dans le secteur postal et des télécommunications.

- Arrêté modifiant la liste nominative des membres du conseil d'administration « d'Algérie Poste ». - Arrêté modifiant la liste nominative des membres du conseil d'administration de l'agence nationale des fréquences. - Arrêté modifiant la liste nominative des membres du conseil d'administration de l'agence nationale de promotion et de développement des parcs technologiques.

9. Ministère de la Solidarité Nationale, de la Famille et de la Condition de la Femme

Nomination des membres du comité de recherche scientifique du ministère de la Solidarité Nationale.

- Arrêté fixant la liste nominative des membres du comité sectoriel permanent de la recherche scientifique et du développement technologique du ministère de la solidarité nationale, de la famille et de la condition de la femme.

10. Ministère du Commerce Intérieur et de la Régulation du Marché National

Ajustement des mécanismes de compensation des prix du café vert importé.

- Arrêté interministériel modifiant et complétant l'arrêté interministériel fixant les modalités de compensation des prix du café vert importé.

11. Ministère de la Communication

Renouvellement des commissions administratives paritaires au ministère de la Communication.

- Arrêté portant renouvellement de la composition des commissions administratives paritaires auprès de l'administration centrale du ministère de la communication.
Recevez les dernières actualités du Journal Officiel Algérien dès sa parution