1. Vacance à la tête de la Cour Constitutionnelle
La démission du président Omar Belhadj a été officialisée, avec la nomination de Leila Aslaoui comme présidente par intérim.
La Cour a officiellement constaté la vacance du poste de Président suite à la démission de M. Omar Belhadj. En sa qualité de membre la plus âgée, Mme Leila Aslaoui assure l'intérim de la présidence jusqu'à la désignation d'un nouveau président.
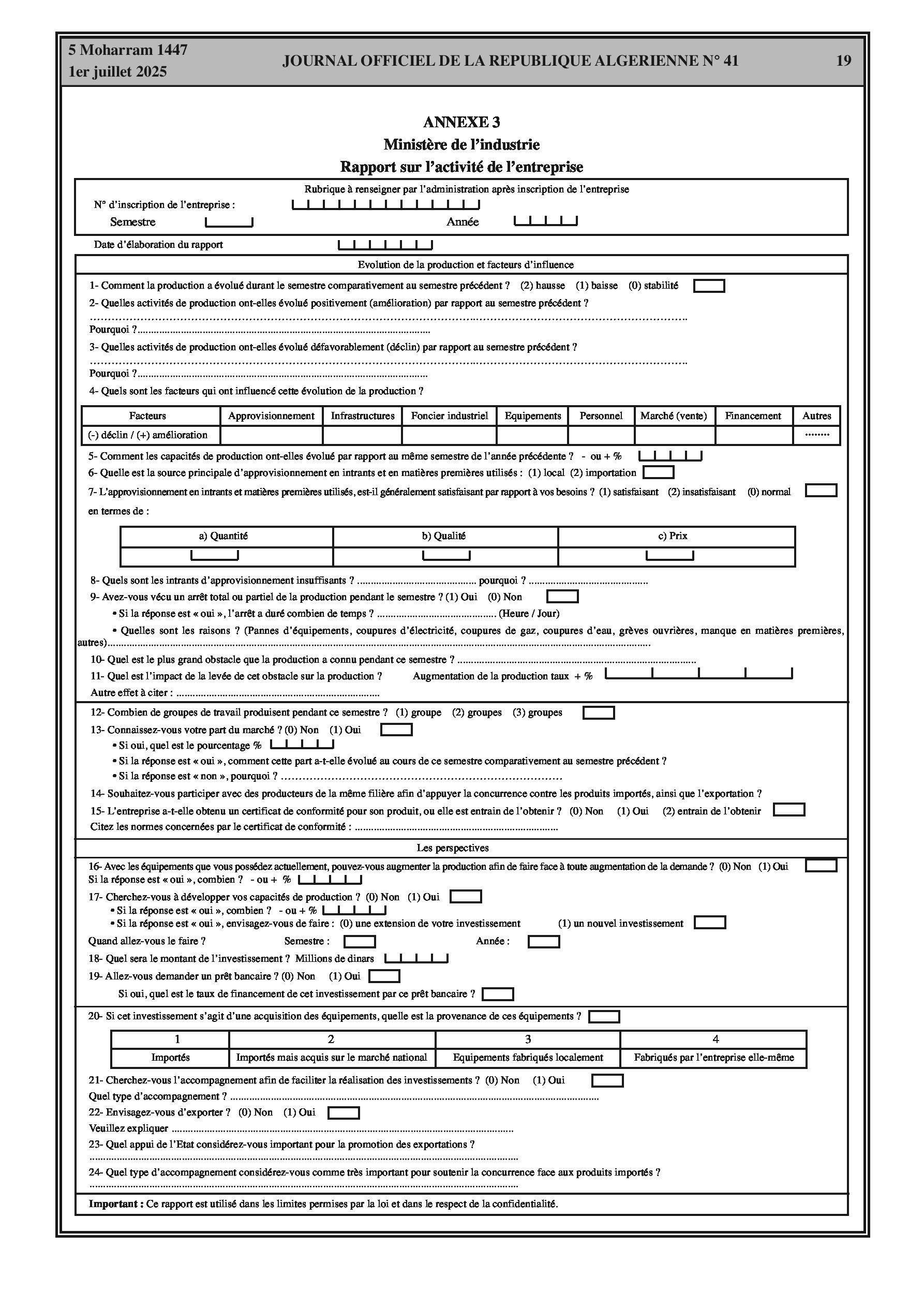
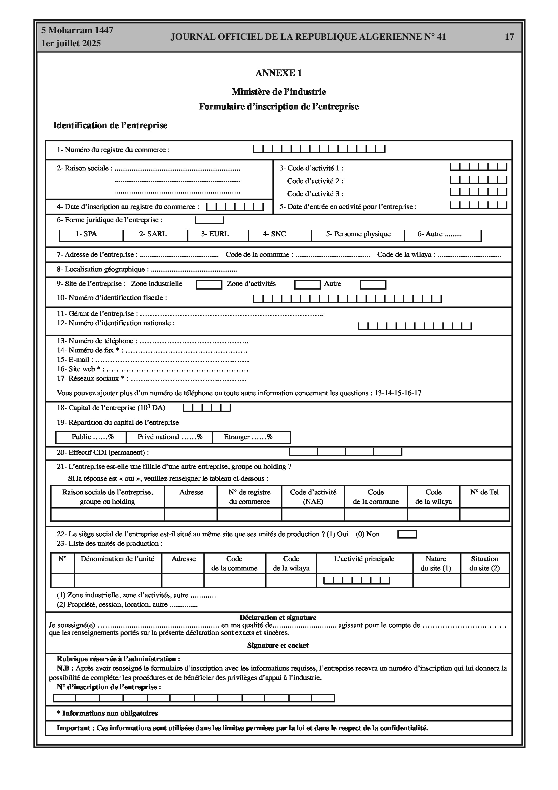
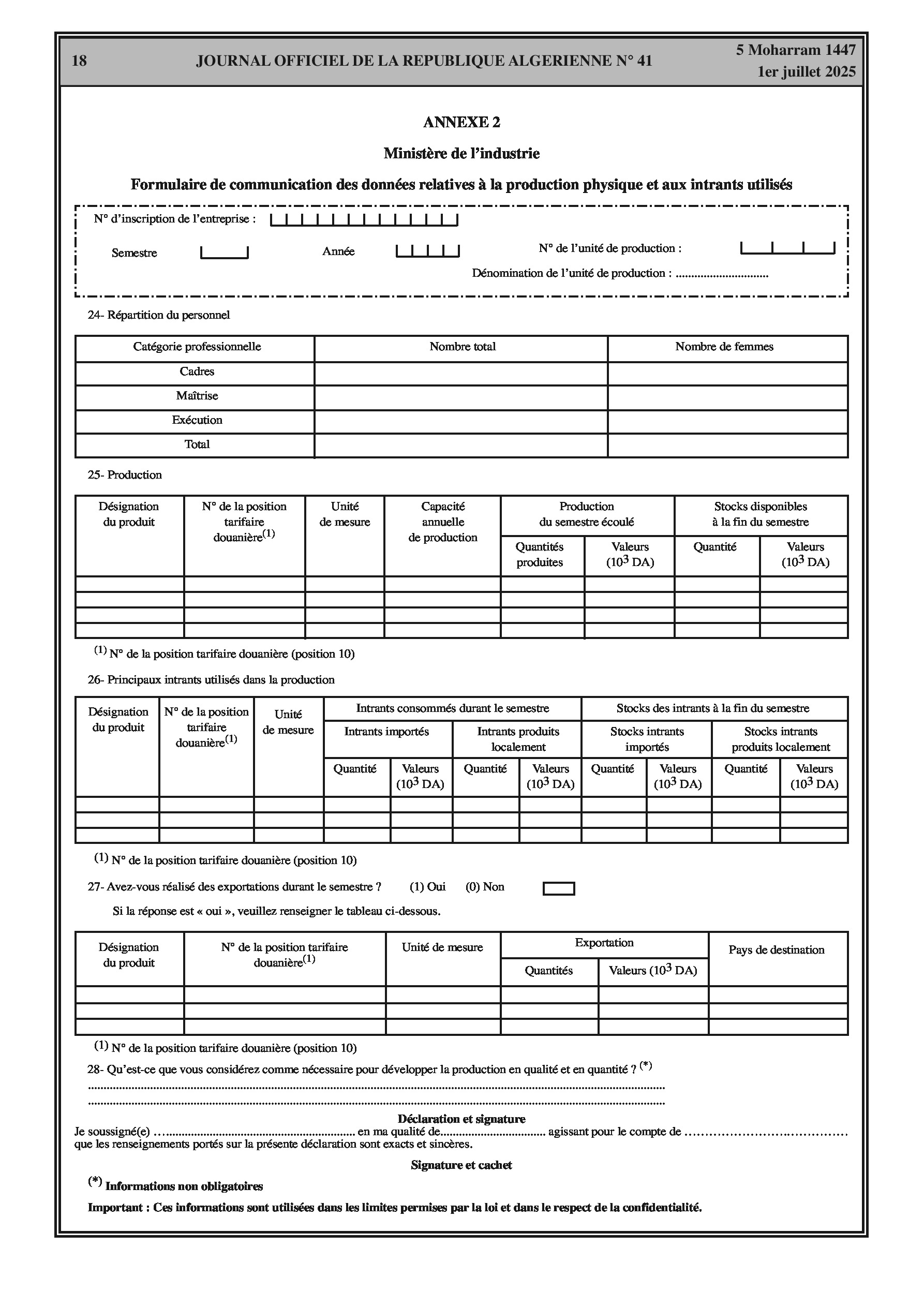
2. Nouvelles réglementations pour les entreprises et les auto-entrepreneurs
Mises à jour clés incluant le vote électronique pour les sociétés cotées, la déclaration obligatoire des données industrielles, et une liste révisée des activités pour les auto-entrepreneurs.
Le secteur financier voit l'approbation du vote électronique pour les assemblées générales des sociétés cotées. Les entreprises industrielles sont désormais tenues de déclarer les données de production et d'intrants via une nouvelle plateforme numérique. La liste des activités éligibles au statut d'auto-entrepreneur est officiellement mise à jour.
3. Réorganisation dans l'Administration Publique
Un nouveau décret fixe le cadre de l'Inspection générale du ministère de la Jeunesse, tandis qu'un arrêté modifie les règles du personnel contractuel au ministère de la Justice.
Un décret exécutif définit l'organisation et les missions de l'Inspection générale du ministère de la Jeunesse. Parallèlement, un arrêté interministériel met à jour les effectifs et la classification des agents contractuels de service et de maintenance au ministère de la Justice.
4. Nominations et fins de fonctions de hauts responsables
Plusieurs décrets présidentiels et exécutifs portant nomination et fin de fonctions de hauts responsables dans divers secteurs gouvernementaux.
Une série de décrets officialise des changements de direction pour des directeurs, inspecteurs et autres hauts fonctionnaires dans les ministères de l'Intérieur, de la Justice, de l'Éducation, de la Santé et de la Protection civile, ainsi que dans des agences nationales et des universités.